◎連絡先:e-mail TEL06(6929)4775澤野自動車有限会社
メゾン・ド・ソレイユ管理事務所
(水曜定休日)
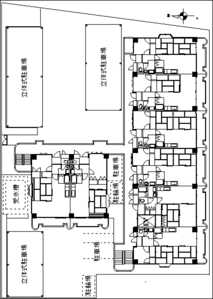
南向き中心ファミリータイプ全69戸
ブロードバンド(光ファイバー・CATV)利用のインターネットマンション。
●賃貸条件(各部屋共通)
○敷金=10万円 ○礼金=15万円
○管理費(月額)=8200円
○駐輪料(月額)=1050円

南面

北西面

エントランス
〇鉄筋コンクリート10階建
〇住宅金融公庫建築仕様
〇2LDK・3LDK4タイプ69戸
〇約54〜58平方メートル
〇駐車場設置率90%(62台)
〇駐輪場設置率174%(120台)
〇「都島」・「京橋」・「野江」3駅6線利用の好アクセス
〇隣は公園
〇「週刊CHINTAI」「関西ゼクシィ」でも紹介された優良マンション
〇オートロック
〇エレベーター
〇BSアンテナ設置
〇ケーブルテレビ(CATV)高速インターネット双方向配線済(別途契約必要)
〇光ファイバー(auひかりone KDDI NTT西日本フレッツ光)最大70Mbps。テレビ・ビデオ・カラオケの利用も可能。
〇自動お湯張り追い炊き式ユニットバス(高温差し湯式)
〇LDK・洋室・廊下・ホールはフローリング(遮音式L45等級)
〇タイル張り外観
〇床御影石・壁大理石のエントランス
以下の雑誌にも紹介されました




●建築概要
| 敷地面積 | 約1341u(約405坪) |
| 建築面積 | 約536u(約162坪) |
| 主体構造 | 鉄筋コンクリート造 地上10階建 |
| 基礎構造 | 独立基礎(現場打ちコンクリート杭 アースドリル工法 GL−31000) |
| 法上床面積 | 約4454u(約1347坪) |
| 工事上床面積 | 約5576u(約1686坪) |
●外部仕上
| 屋根 | アスファルトシングル葺(勾配10:2,5) 一部シート防水 アルミ笠木 |
| 軒(庇)裏 | コンクリート打放し 補修 アクリルリシン吹付け |
| 外壁 | 452丁タイル貼(特注色) 一部吹付けタイル アプローチ廻り 御影石貼 |
| 腰壁 | 外壁と同じ(目地別れ) |
| 開口部 | アルミサッシ(カラー) 玄関ドアー:スチール製 風除室:ステンレス製 |
| バルコニー | 床:防水モルタル 手すり内側:吹付けタイル 外壁:452丁タイル貼(特注色) |
| 開放廊下 | 床:防水モルタル 手すり内側:吹付けタイル 外壁:452丁タイル貼(特注色) |
| 樋 | VP100 |
| 面格子 | アルミ面格子 アルミサッシ(カラー)+アルミ水切り |
| アプローチ | 床:御影石 天井:アルミスパンドレル |
●室内仕上
|
床 |
巾 木 |
壁 |
天 井 |
備 考 |
|
| アルコープ | 防水モルタル | モルタル | 吹付けタイル | 吹付けタイル | 室名札 |
| 玄関 | CFシート | ビニール巾木 | ビニールクロス | ビニールクロス | ステンレス製上り框 |
| ホール | フローリング | ビニール巾木 | ビニールクロス | ビニールクロス | |
| 洋間 | 遮音用フローリング | ビニール巾木 | ビニールクロス | ビニールクロス | |
| 和室 | スタイロ畳 | 畳寄せ | ビニールクロス | 杉柾石膏ボード | 廻り縁 |
| LDK | 遮音用フローリング | ビニール巾木 | ビニールクロス | ビニールクロス | 流し台L=1500(松下電産) コンロ台L=600(松下電産) |
| 押入 | 木床和ベニヤ | 雑巾摺 | 押入用化粧ボード | 押入用化粧ボード | 中段 天袋 |
| 物入 | 木床和ベニヤ | 雑巾摺 | 押入用化粧ボード | 押入用化粧ボード | 中段 枕棚 ハンガーパイプ |
| トイレ | CFシート | ビニール巾木 | ビニールクロス | ビニールクロス | 洋風便器(イナックス)棚 天井扇 |
| 洗面脱衣室 | CFシート | ビニール巾木 | ビニールクロス | ビニールクロス | 洗面化粧台L=600(松下電工) 防水パン |
| 浴室 | ユニットバス(1216松下電工) | ミラーキャビネット | |||
●平面図
